Helsinki Architecture and Design museum competition, bird’s-eye view, Aug.2025, Pekka Harni ©Harni‑Takahashi Ltd.

New Museum Of Architecture And Design, AD museum

Architectural competition 2024
Helsinki, Finland

architect SAFA: Pekka Harni
visualisation: Yuka Takahashi
moodboard assisted by Tuulia Susiaho
#UUSI ARKKITEHTUURI- JA DESIGNMUSEO HELSINKI

The international two‑stage open competition sought a design for a globally unique museum of architecture and design in Helsinki’s South Harbour to redefine Helsinki as a destination for architecture, design, arts and culture.

PUBLIC AREAS
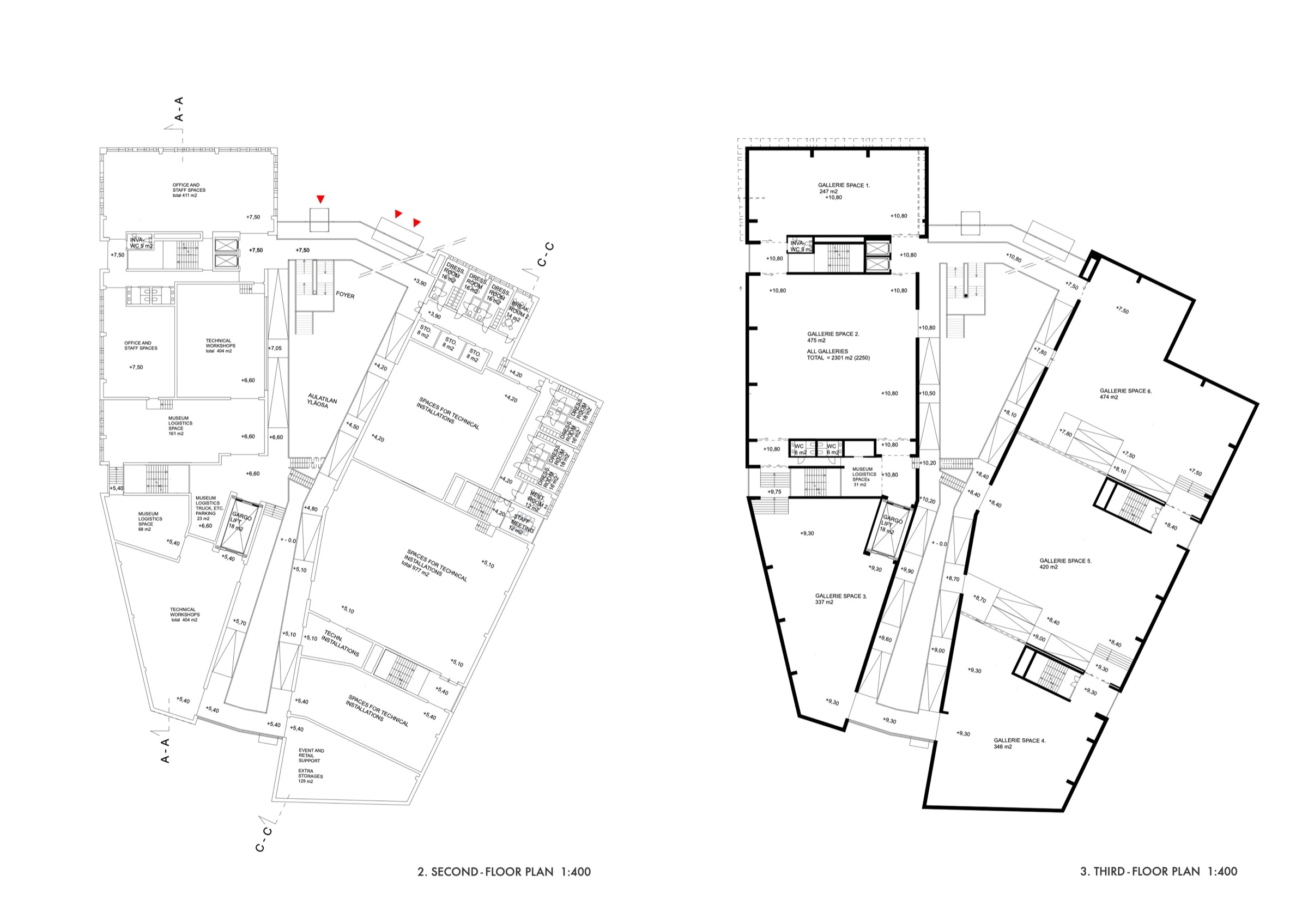
Ground floor
The museum’s ground floor contains supporting services: cloakroom, toilets, café and restaurant, museum shop, lobby, library and a congress centre with auditoriums and workshop spaces; from the main foyer, visitors can take lifts to the 3rd‑floor exhibition galleries or to the 5th‑floor sky bar, restaurant and rooftop terrace offering panoramic seaside views and versatile event spaces.

Rooftop & events
The rooftop terrace, accessed from the 5th-floor sky bar and restaurant, offers some of Helsinki’s best seaside views and food and drink facilities; it is designed as a high‑profile visitor space capable of hosting a wide range of events at varying scales and configurations, from classical concerts to techno parties.

Exhibition circulation
The exhibition begins on the 3rd floor and follows a user‑friendly five‑gallery loop that gently slopes down along the exterior wall to the 2nd floor; visitors follow the outside wall through a complete loop that descends gradually to the 2nd‑floor lift/stairway. A 260 cm‑wide ramp with a 5% gradient provides an accessible full circuit between the 3rd and 2nd floors for visitors with reduced mobility, and lifts connect to the ground floor. Timeline displays of Finnish design and architecture are mounted on the ramp walls, in the foyer and on screens or 2D panels.

INTERNAL AREAS — Museum management
Offices, staff spaces and restrooms are mainly located on the 1.5th and 2nd floors, together with technical workshops and museum logistics; the main kitchen is on the 1st floor.

Technical rooms are on the 2nd floor, and four separate compartmented emergency‑exit stairways also serve internal circulation.

CONSTRUCTION, MATERIALS AND SUSTAINABILITY
The hybrid building uses sustainable materials such as CO2‑reduced concrete, CLT timber elements and metal windows. Roof gardens can support local ecological planting and help slow rainwater runoff.

The total gross floor area (GFA) of the building is 11,701 km2.