Museum of History and The Future, Turku, Finland, bird view, Jan 2024, Pekka Harni ©Harni‑Takahashi Ltd.

MUSEUM OF HISTORY AND THE FUTURE

Architectural competition 2024
Turku, Finland

architect SAFA: Pekka Harni
visualisation: Yuka Takahashi
assisted: student of architecture, Mahdi Alizadeh
#HISTORIAN JA TULEVAISUUDEN MUSEON KANSAINVÄLINEN ARKKITEHTUURIKILPAILU

The aim of the competition was to find an internationally interesting and architecturally exceptional Museum of History and the Future that supports local development. The competition period was 4 September 2023–16 January 2024. The site of the future museum is unique in terms of its cultural history and cityscape near Forum Marinum, Turku Castle, River Aura, the Baltic Sea. Developing new Linnanniemi area offer a rewarding and at the same time demanding framework for a new building as part of a national cultural landscape.

In this competition proposal, the museum building is placed on the site diagonally relative to the street grid, leaving the plot’s northwest corner as a basin — square/park area; likewise, the southeast corner of the plot opens the park area’s view toward the archipelago sea. A small park with pools opening in front of the new residential blocks increases the appeal of this urban space. Space remains at the plot’s west end for a reduced small-boat harbour basin, if such is decided.
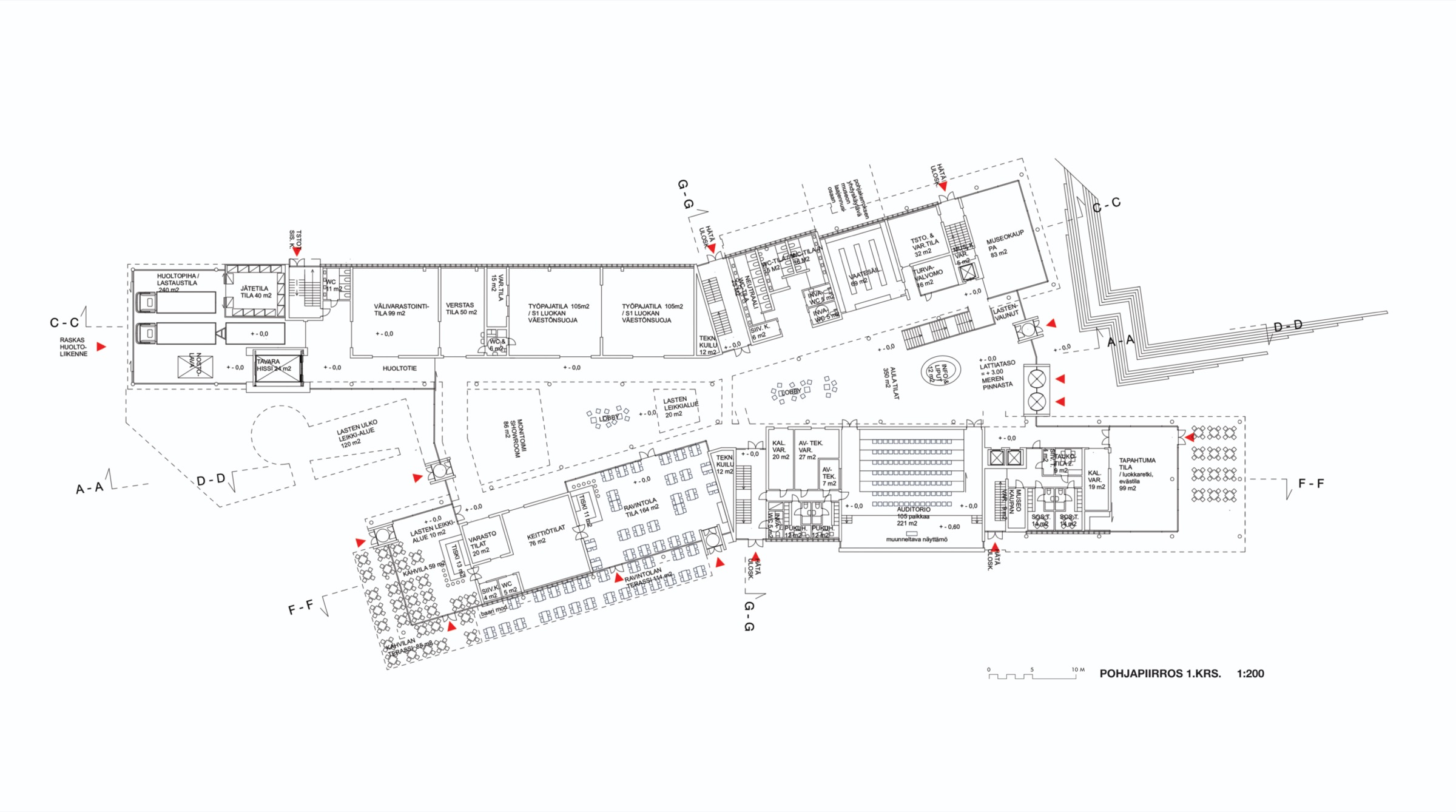
The building’s wing sections frame an entrance plaza at the end of Satamakatu. The lobby spaces pierce the building, creating an axis: one end opens to a view of Turku Castle, the other to the archipelago sea and the setting sun.

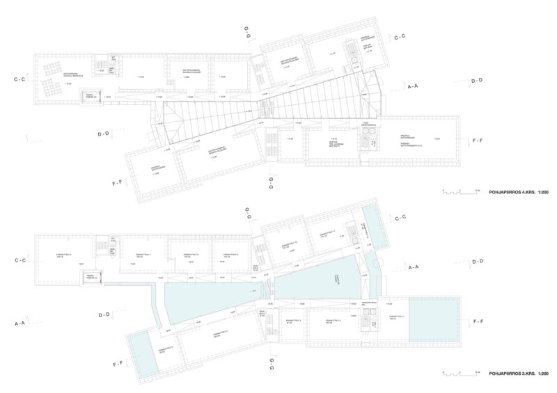
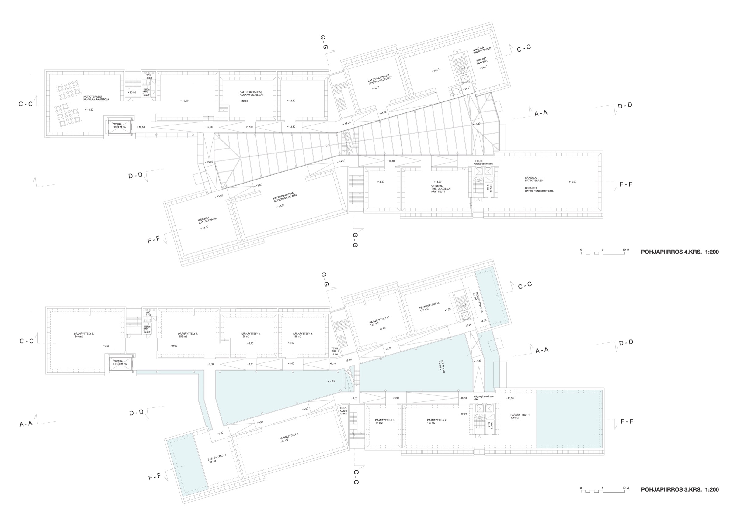
The museum is easy to navigate — visitors can choose: the 4th floor is a roof terrace; the main exhibition spaces are on the 3rd floor; all rotating exhibitions are on the 2nd floor — in principle, the route proceeds downward. From the ramp-gallery corridor of the lobby, a changing view opens to this magnificent landscape on each circuit.