After renovation/ Extension of a wooden house, design Pekka Harni, photo©Harni-Takahshi ltd.
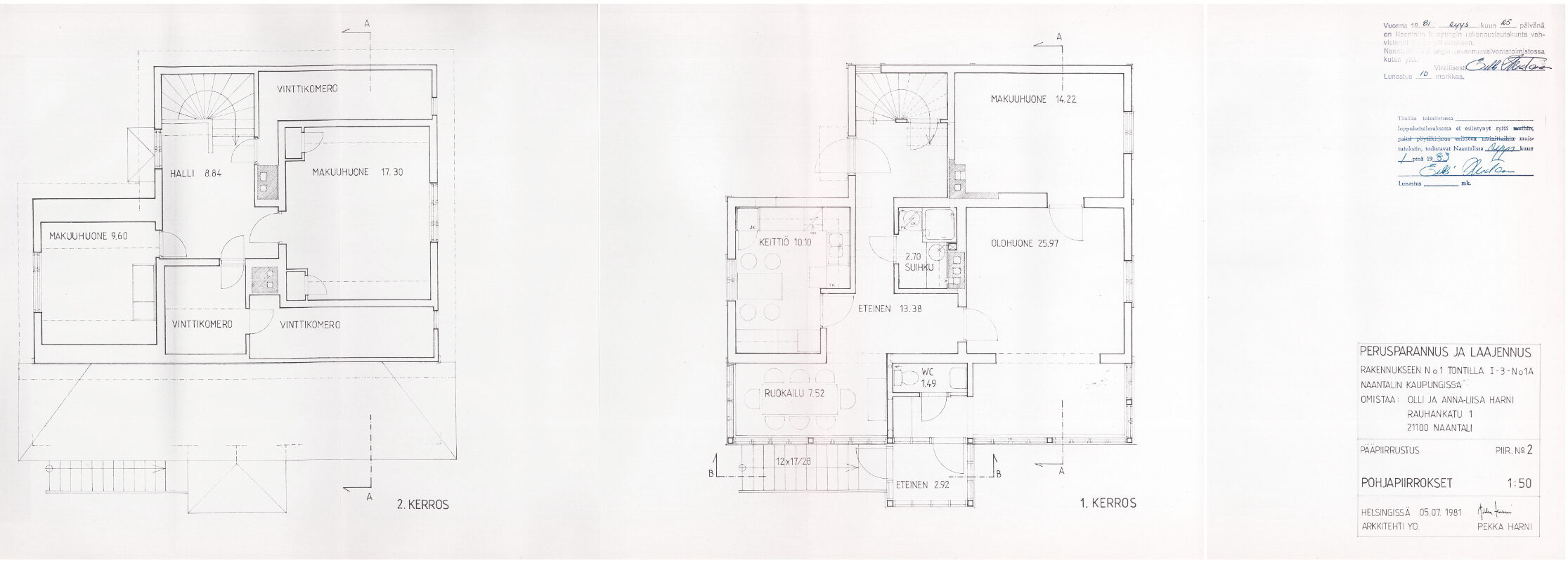
Extension of Old Wooden House in Naantali
1981
Naantali, Finland
architect SAFA: Pekka Harni
Extension of a wooden house, design ©Pekka Harni
Extension of a wooden house, design ©Pekka Harni
Extension of a wooden house, design ©Pekka Harni
Extension of a wooden house, design ©Pekka Harni
Extension of a wooden house, design ©Pekka Harni
Before renovation/ Extension of a wooden house, design Pekka Harni, photo:©Ismo Varjoranta